腳手架使用安全操作規范及注意事項
腳手架是建筑施工項目中不可或缺的重要工具,腳手架要求具有足夠面積,能滿足工人操作、材料堆置和運輸需要,同時必須堅固穩定,能保證施工期間在各種荷載和氣候條件下不變形、不傾斜、不搖晃。
一、腳手架常見安全隱患
1、腳手架未編制專項施工方案或方案未審批。
2、腳手架連墻件設置不符合規范。
3、桿件間距與剪刀撐設置不符合規范。
4、腳手板、立桿、縱向水平桿、橫向水平桿材質不符合規范。
5、施工層腳手板未滿鋪。
6、腳手架搭設前未進行交底,未組織腳手架分段及搭設完畢的檢查驗收,或驗收記錄不全面。
7、腳手架材料堆放過多、不均勻,荷載超過規范。
8、通道及卸料平臺的防護欄桿不符合規范。
9、腳手架搭設人員未經專業培訓上崗作業。
二、腳手架安全技術要求
1、必須有完善的施工方案,并經企業技術負責人審批。
2、必須有完善的安全防護措施,要按規定設置安全網、防護欄桿、擋腳板。
3、操作人員上下架子,要有保證安全的扶梯、爬梯、斜道。
4、必須有良好的防電、避雷裝置,鋼腳手架等均應可靠接地,高于四周建筑物的腳手架應設避雷裝置。
5、必須按規定設掃地桿、連墻件和剪刀撐,保證架體牢固。
6、腳手板要滿鋪、鋪穩,不得留探頭板,要保證有3各支撐點,并綁扎牢固。
7、在腳手架搭設和使用過程中,必須隨時進行檢查,經常清除架體上垃圾,注意控制架上荷載,禁止架上過多堆放材料和多人擠在一起作業。
8、工程復工和風、雨、雪天氣后應對腳手架進行詳細檢查,發現有立桿沉陷、懸空、接頭松動、架子歪斜等情況應及時處理。
9、遇6級以上大風或大霧、大雨天氣,應暫停高處作業,雨雪后上架操作應有防滑措施。
10、腳手架搭設完畢后應進行檢查驗收,經檢查驗收合格才能使用。
11、腳手架上同時多層作業時,各作業層之間應設置可靠防護棚,以防止上層墜物傷及下層作業人員。
(1)建筑施工扣件式鋼管外腳手架的搭設及施工管理,體現企業具有特色外腳手架形象及標準化施工能力,本標準依照國家和地方有關安全技術規范、編制了《建筑工程外腳手架搭設內標準》。 (2)本標準對外腳手架的立面形象、構造要求、搭設拆除、檢查與驗收、管理要求做出了具體陳述,并且對一些特殊部位的構造作法進行了細化,細化的部位主要包括:陽臺處、飄窗處、外用電梯卸料平臺處、電梯井及采光井內、建筑物陽角處等。 (3)本標準具體內容與國家、地方有關安全技術規范規定要求不符的,以國家、地方有關安全技術規范規定為準。 (1)外架手架鋼管必須進行防銹處理,除銹后刷一道防銹漆和兩道面漆。 (2)木腳手板型號3000(6000)×200(250)×50,兩端采用Φ1.6mm鍍鋅鐵絲綁扎;鋼筋網片式腳手架采用HPB235Φ6鋼筋制作截面40mm間距,用Φ1.6mm鍍鋅鐵絲固定在小橫桿上。

(1)黃色油漆:腳手架立桿、大小橫桿、縱橫向掃地桿。 (2)紅色油漆:連墻件。 (3)黃黑相間雙色油漆:腳手架外側防護欄桿、斜道防護欄桿、卸料平臺防護欄桿。 (4)紅白相間雙色油漆:剪刀撐、橫向斜撐、踢腳板、樓梯臨邊防護欄桿、施工電梯卸料平臺臨邊防護欄桿。 (5)示意圖顏色與文字敘述不一致的,以文字描述的顏色為準。

(1)腳手架外側防護必須使用合格的密目式安全網封閉。外架上應設置公司標志(“公司”橫幅)和宣傳標語。保證外架協調美觀,體現企業特色。

(1)架體陰陽轉角處應設置4根立桿,大橫桿應連通封閉。 (2)主節點處必須設置縱橫向水平桿。 (3)立桿除頂層頂部外必須采用對接,大橫桿在架體轉角外可以搭接,剪刀撐必須搭接。 (4)剪刀撐、連墻件必須隨外腳手架同步搭設、同步拆除。嚴禁后搭或先拆。



(1)落地式腳手架搭設高度不宜超過35m,高度在35~50m時必須采取卸荷措施,高度大于50m時必須采取卸荷措施并對專項方案進行專家論證。 (2)腳手架基礎平整、夯實、混凝土硬化,基礎應采用100mm厚C25混凝土硬化,立桿底部設置底座或墊板。墊板應采用長度不少于2跨、厚度不小于50mm、寬度不小于200mm的木墊板。 (3)落地式腳手架必須設置縱、橫向掃地桿,縱向掃地桿宜采用直接扣件固定在緊靠縱向掃地桿下方的立桿上。當立桿基礎不在同一高度時必須將高處的縱向掃地桿向低處延長兩跨與立桿固定,高低差不應大于1m,緊邊坡上方的立桿軸線道邊坡的距離不小于500mm。

(4)腳手架基礎應考慮周邊設有排水措施,腳手架底座底面標高應高于室外自然地坪50mm,立桿基礎外側設置截面不小于200mm×200mm的排水溝,保證腳手架基礎不積水。


(1)腳手架外側滿掛密目安全網,網目數不低于2000 目/100cm 2 ,網體豎向連接時采用網眼連接方式,每個網眼應用16#鐵絲與鋼管固定,網體橫 向連接時采取搭接方式,搭接長度不得小于200mm。架體轉角部位應設置木枋作內襯以保證架體轉角處安全網線條美觀。 (2)腳手架外側自第二步起底部設180mm擋腳板,在高600mm與1200mm處各設同材質的防護欄桿一道。腳手架內側形成臨邊的,則按腳手架外側防護做法。 (3)腳手架外排立桿、大橫桿表面刷黃色油漆,攔腰桿表面刷黃黑相間雙色油漆,外立面每隔3層或9m設置一道200mm高警示帶,固定于立桿外側。警示帶尺寸見圖示,表面刷紅白相間警示色油漆。


(1)作業層必須滿鋪腳手板,腳手板離建筑物結構的距離不應大于150mm。 (2)落地架第二層、懸挑架(爬架)首層,中間層不超過10m且不超過三層滿鋪一道硬質隔斷防護,并在兩層硬防護的中間部位張掛水平兜網,水平兜網必須兜掛至建筑物結構。 (3)腳手架的內立桿距離體凈距一般不大于200mm,如大于200mm的必須鋪設平整牢固的站人片, 作業層腳手板與建筑物之間的空隙大于150mm 時應做全封閉,防止人員和物料墜落。

(1)連墻件表面應刷紅色醒目油漆,便于檢查和警示。 (2)腳手架必須采用剛性連墻件。 (3)連墻件應從底層第一步縱向水平桿處開始設置,當該處有困難時,應采用可靠措施固定。連墻件宜優先采用菱形布置,也可采用方形,矩形布置。 (4)連墻件應靠近主節點設置,偏離主節點的距離不應大于300mm (5)連墻件的間距應根據設計計算規定,并應符合下表“連墻件布置的最大間距”的規定。 (6)一字型、開口型腳手架的兩端必須設置連墻件,連墻件的垂直間距不應大于建筑物的層高,并不應大于4m(兩步)。


(1)剪刀撐應從腳手架底部邊角從下到上連續設置,剪刀撐表面刷紅白相間警示色油漆。 (2)每道剪刀撐跨越立桿的根數應按下表的規定確定。每道剪刀撐寬度不應小于4跨,且不應小于6米,斜桿與地面的傾斜角宜45°~60°傾斜角宜45°~60°。 (3)24米以下的落地式外架,在架體外側兩端、轉角及中間間隔不超過15米的立面上設置豎向連續剪刀撐。24米以上的落地式外架及所有懸挑架,在架體外側整個立面搭設連續剪刀撐。

(4)剪刀撐桿件的接長應采用搭接,搭接長度不應小于1m,且不小于3個扣件堅固。
(5)剪刀撐斜桿應用旋轉扣件固定在與之相交的橫向水平桿的伸出端或立桿上,旋轉扣件中心線至主節點的蹁不宜大于150mm。
(6)一字型、開口型雙排架兩斷口必須設置橫向斜撐,24m以上架體在架體拐角處及中間每六跨設置一道橫向斜撐。
(7)橫向斜撐應在同一節間,由底到頂呈“之”字型布置,斜撐交叉和內外大橫桿相連到頂。


(1)人行道兼優質材料運輸的斜道高度不大于6m時宜采用一字型,高度大于6m時宜采用之字形。 (2)運料斜道寬度不宜大于1.5m,坡度采用1:6,人行斜道寬度不宜小于1m,坡度宜采用1:3。 (3)拐彎處應設置平臺,其寬度不應小于斜道寬度,斜道兩側及平臺外圍均應設置1.2m和0.6m高的雙道防護欄桿及180mm擋腳板,防護欄桿表面刷黃黑警示色,擋腳板表面刷紅白警示色。 (4)斜道宜附著外腳手架或建筑物設置,其各立面應設置剪刀撐,斜道外側掛密目安全網封閉。 (5)斜道的基礎與外腳手架基礎一致,斜道的連墻件按照開口型腳手架要求設置。 (6)斜道應滿鋪腳手板,運料腳手架采用不少于40mm厚的木板,人行斜道可采用木板或毛竹片滿鋪,斜道還應設置防滑條,防滑條厚度為20~30mm,間距不大于0.3m,斜道上腳手板和防滑應保證穩定牢固。


12.1 樓梯臨邊防護 ( 1)樓梯及休息平臺臨邊處無可靠防護時應設置防護欄桿。應在1.2m、0.6m高處及底部設置三道防護欄桿,桿件內側掛密目式安全立網 (2)防護設施宜定型化、工具化。 (3)立桿用預埋件或采用M12膨脹螺栓固定

12.2 塔吊操作平臺及上人通道防護
(1)塔吊在附墻部位必須搭設附墻用操作平臺,平臺的面積應能滿足使用要求,采用鋼管搭設或定型化操作平臺。
(2)附墻部位操作平臺必須設置1.2m高防護欄桿并掛設安全網,欄桿內側設置擋腳板,底部滿鋪腳手板。
(3)塔吊設置上人通道時,通道應滿鋪腳手板并固定牢靠,兩側防護欄桿不低于1.2m,欄桿內側掛設安全網,底部安裝180mm高踢腳板,并且只能在附著位置搭設。
(4)塔吊上人通道不得與外腳手架相連

12.3 施工電梯平臺防護
(1)施工升降機樓層卸料平臺搭設前必須編制專項施工方案,對搭設高度超過24m的,應采取措施進行卸荷。禁止立桿由底到頂連續通長設置。 (2)樓層卸料平臺應單獨搭設,嚴禁與外架連接。每層搭設高度不應小于2m,平臺兩側均應設置2道防護欄桿,高1.2m,底部設置200mm高擋腳板,防護欄桿和擋腳板均刷紅白相見警示漆,立桿內側滿掛安全密目網。樓層卸料平臺板必須厚實牢固、鋪設嚴密,應采用5cm厚木板或防滑鋼板。 (3)施工電梯平臺出口處安裝1.8m高立開式常閉向內開啟的金屬防護門,宜采用工具式防護門。 (4)樓層卸料平臺兩扇防護門中間應用模板封閉,外刷藍漆并設樓層標識。


12.4 安全通道防護棚
(1)建筑物的出入口必須設置安全通道防護棚,具備防砸、防雨、抗沖擊功能。 (2)在吊裝影響范圍和建筑物墜落半徑以內的通道、材料加工區、物料提升機進料口、外用電梯地面進料口及其他需要防止高空墜物的區域,必須設置防止穿透的雙層 防護棚,雙層防護棚(間距600mm),必須滿鋪能承受>10KPa 的均布靜荷載的 材料( 50mm 厚木板或符合規定的其他材料)。 (3)安全通道棚正立面應設置安全標語及警示標志牌。 (4)安全通道內應設安全教育文化墻或安全教育宣傳漫畫,高度1- 2米,采用戶外噴繪。

(5)安全通道棚立桿高出頂棚不宜小于700mm,在頂棚超高部分兩側張掛密目安全網,安全網設置在立桿內側。
(6)安全通道兩側采用密目安全網封閉。
(7)車行安全通道,寬×高宜大于4000mm × 4000mm。
(8)人行安全通道,寬×高宜大于3500mm × 4000mm。

13.1 基本規定 (1)懸挑腳手架搭設前,必須編制專項施工方案,方案必須包含懸挑梁平面定位布置圖。分段搭設高度不宜超過20m,超過20m應組織專家進行方案論證。 (2)懸挑腳手架的懸挑梁必須選用不小于16號的工字鋼,懸挑梁的錨固端長度應不小于懸挑端長度的1.25倍,懸挑長度不應過長。 (3)懸挑梁錨環端應設置兩道錨環(間距20cm),錨環直徑16mm以上。每道鋼梁端部設置φ14mm以上斜拉鋼絲繩,上端吊環使用φ20mm圓鋼預埋。 (4)工字鋼、錨固螺桿、斜拉鋼絲繩具體規格、型號除滿足上述要求外還應依據方案及計算書最終確定。

(5)腳手架底部應按規范要求沿縱橫方向設置掃地桿,懸挑梁上表面應加焊短鋼筋以固定立桿,在橫桿上方沿腳手架長度方向鋪設木枋,并滿鋪模板進行防護。
(6)懸挑架所有外架立桿均必須坐在型鋼梁上,陽角處懸挑梁宜按扇形(放射狀)布置,轉角附近立桿無法直接安裝在懸挑型鋼梁上時,應在懸挑梁上沿外架縱向鋪設輔助型鋼連梁(扁擔梁),將外架立桿安裝于輔助型鋼梁上,不得存在吊腳桿(下部懸空)。
(7)外立面沿整個面搭設連續剪刀撐。
(8)懸挑架連墻件應按兩步(每層)兩跨設置。


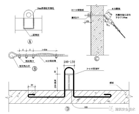
13.2 型鋼梁的固定
(1)型鋼梁的固定:型鋼梁與主體混凝土結構的固定可采用預埋螺栓固定、鋼筋拉環錨固,不得采用扣件連接。 (2)當采用鋼筋拉環錨固時,拉環應錨入樓板30d,并壓在樓板下層鋼筋下面,如不能保證鋼筋的混凝土保護層厚度,也可以將拉環壓在樓板下層鋼筋上面,同時在拉環上部兩側各附加兩根直徑14-16mm的鋼筋,并與樓板鋼筋綁扎牢固,以確保拉環不會從混凝土樓板中拔出 (鋼筋拉環禁止采用螺紋鋼)。 (3)錨環在混凝土澆筑前進行預埋,螺桿絲扣用膠帶進行保護,錨環處板厚小于120mm時錨腳處附加2Φ12,1m長鋼筋。

13.3 懸挑架的防護
(1)挑架外側必須采用合格的密目式安全網封閉圍護,安全網用不小于18#鉛絲張掛嚴密,且應將安全網掛在挑架立桿里側,不得將安全網圍在各桿件外側。 (2)挑架與建筑物間距大于20cm時,應鋪設站人片。除挑架外側1.2m高防護欄桿和180mm高踢腳桿外,挑架里側遇到臨邊時(如大開間窗、門洞等)時,也應進行相應的防護。 (3)懸挑式外腳手架底部(懸挑梁處)采用硬質防護(模板)封閉嚴密 硬質防護(模板)底面應涂黃黑相間油漆。 (4)挑架作業層和底層應采用合格的安全網或采取其他措施進行分段封閉式防護。

13.4 懸挑架的特殊部位做法






(1)吊籃腳手架采用廠家生產的定型產品,應有設計標準書、產品合格證及安裝、使用、維護說明書等資料。 (2)吊籃應設置上行程限位裝置。 (3)吊籃的每個吊點應設置2 根鋼絲繩,安全鋼絲繩應裝有安全鎖或相同作業的獨立安全裝置。在正常運行時,安全鋼絲繩應順利通過安全鎖或相同作用的獨立安全裝置,安全繩應在有效標定期內使用,標定期不得大于一年。 (4)在正常工作狀態下,吊籃懸掛機構的抗傾覆力矩與傾覆力矩的比值不得小于2。 (5)挑梁鉚固要牢靠,上面配重要符合設計要求,要按設計或施工方案安裝吊籃,升降設施要靈敏牢靠,并有自動保險裝置。吊籃第一次組裝后經載荷試驗合格后,方可投入使用。

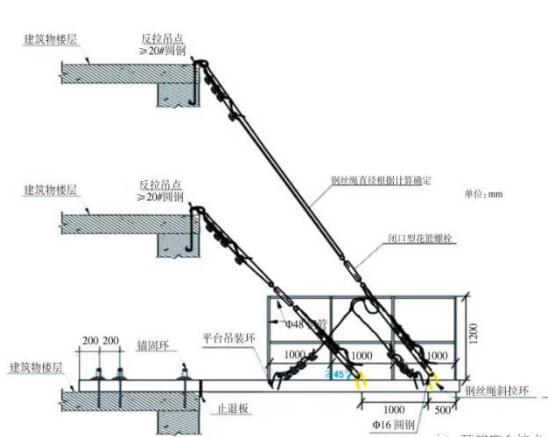
15.1 懸挑式卸料平臺 (1)懸挑鋼平臺須經設計計算方可制作,須編制專項方案并按專項方案制作、安裝使用。 (2)懸挑卸料平臺額定載重量一般不得超過1t,有效載料面積一般不宜小于7㎡或者超過9㎡。 (3)卸料平臺應采用型鋼焊接成主框架,主挑梁型號不得小于18號槽鋼(或16#工字鋼),錨固端預埋?20 U型環,不宜埋設在結構懸挑部位 (4)鋼絲繩直徑應根據計算確定且不小于?21.5,平臺兩邊各設前后兩道獨立斜拉鋼絲繩,分別拉接在4個拉結點上,斜拉鋼絲繩與平臺間夾角應大于45°,繩卡數量、間距按照規范設置。


(5)卸料平臺應獨立設置,平臺的擱支點和上部拉結點,必須牢固固定于建筑結構上,嚴禁設置在腳手架等施工設施上。
(6)卸料平臺底部應用花紋鋼板焊接固定,與外架之間的間隙也應封閉良好。(或平臺上滿鋪厚度不小于5cm的木板或模板,且必須固定牢固。)平臺兩側及前方用模板豎向封閉,防止雜物墜落。
(7)卸料平臺兩側面設置固定的防護欄桿,其立桿與主挑梁焊接固定。防護欄桿高度不低于1.5m,下設180mm高擋腳板,平臺兩側及前方應采用硬質材料封閉。
(8)防護欄桿表面刷黃黑相間油漆,踢腳板刷紅白警示漆,間距300-400mm。

(9)卸料平臺應掛設限載標志牌,嚴禁超載。平臺前段可設置長度不小于1m的外挑部分,并掛設安全兜網,以轉運較長鋼管。
(10)卸料平臺每次安裝后均應進行驗收,并作好記錄。驗收合格后掛驗收合格牌,并懸掛限載標志牌。

此處為腳手架空檔,使用時應張掛安全平網,并于平網上部鋪設專用防滑腳手板,隨樓層周轉使用。
15.2 落地式卸料平臺
(1)落地式卸料平臺基礎應事先進行夯實或硬化處理滿足承載力要求,立桿底部應設置木墊板或鋼底座,并加設縱橫向掃地桿,平臺沿圈應滿設剪刀撐。 (2)落地式卸料平臺搭設高度不應大于20m 。 (3)鋼管扣件落地式卸料平臺的立桿間距、步距及搭設高度要求通過計算來確定,符合腳手架規范要求,嚴禁與與外架和模板支撐架連接 (4)臨邊設防護欄桿,掛設安全警示、限載標志牌。平臺板鋪設嚴密,不留空隙。 (5)落地式卸料平臺每次安裝后均應進行驗收,并作好記錄。



16.1 搭設
(1)腳手架立桿搭設高度應超出作業層1.2m。
(2)腳手架立桿頂端欄桿應高出女兒墻上端1m,高出檐口上端1.5m
(3)單排腳手架搭設高度不超過 24m;雙排腳手架搭設高度不宜超過50m,高度超過50m的雙排腳手架,應采用雙管立桿搭設或分段卸荷等措施。
(4)懸挑腳手架每段搭設高度不大于20m。
(5)腳手架開始搭設立桿時,應每隔6跨設置一根拋撐,直至連墻件安裝穩定后,方可根據情況拆除。
(6)腳手架須配合施工進度搭設,一次搭設高度不應超過相鄰連墻件以上兩步。如果超過相鄰連墻件以上兩步,無法設置連墻件時,應采取撐拉固定等措施與建筑結構拉結。
16.2 腳手架拆除
(1)腳手架拆除施工過程中應劃分作業區,周圍設圍欄和警戒標志,設專人指揮。禁止非腳手架作業人員進入安全警戒區域,如安全員或警戒員中途離場,不得施工。 (2)腳手架拆除作業必須由上而下逐層進行,嚴禁上下同時作業;連墻件必須隨腳手架逐層拆除,嚴禁先將連墻件整層或數層拆除后再拆腳手架;分段拆除高差大于兩步時,應增設連墻件加固。 (3)所有拆下的桿件和配件,必須隨拆隨用繩子捆綁好往下放,或用垂直運輸機械往下吊運,嚴禁隨手往下拋擲。運下來的桿件應隨時碼放整齊。
(1)外腳手架、工具式腳手架、卸料平臺等由總監工程師、項目經理組織,方案編制人、技術負責人、安全員、搭設班組參加驗收。驗收合格后,并掛驗收合格牌(搭設部位、搭設人、驗收人、驗收日期、驗收合格標示),方可使用。
(2)腳手架掛牌實行兩種顏色。藍色表示腳手架已經過檢查且符合設計要求,可以使用。紅色表示腳手架未搭設完成或不合格,不得使用;另外,在特殊情況下,如天氣原因等,禁止攀爬,也使用該牌。
(1)架體搭設前,項目應編制專項施工方案并報上級審批。項目總工程師應組織方案交底并做好交底記錄,現場作業人員應嚴格按方案執行。 (2)從事建筑現場鋼管腳手架搭設的分包單位,必須具備建設行政主管部門頒發的《腳手架作業分包企業資質》和《安全生產許可證》,嚴禁超越資質許可范圍承接業務或進行資質轉借、掛靠等違法行為。 (3)腳手架安裝與拆除人員必須是經考核合格的專業架子工。架子工應持證上崗。 (4)搭設腳手架人員必須戴安全帽、系安全帶、穿防滑鞋。 (5)嚴格控制施工荷載,腳手板不得集中堆料,結構階段施工荷載不大于3KN/㎡,裝修階段施工荷載不大于2KN/㎡。

(6)腳手架使用期間,嚴禁拆除主節點處的縱、橫向水平桿,縱、橫向掃地桿,連墻件。
(7)嚴禁使用腳手架作為起吊重物的承力點。嚴禁將纜風繩、泵送混凝土輸送管、電纜等設施、設備固定在施工用腳手架上。
(8)當有六級以上強風、濃霧、雨或雪天氣時應停止腳手架搭設與拆除作業。雨、雪后上架作業應有防滑措施,并應掃除積雪。
